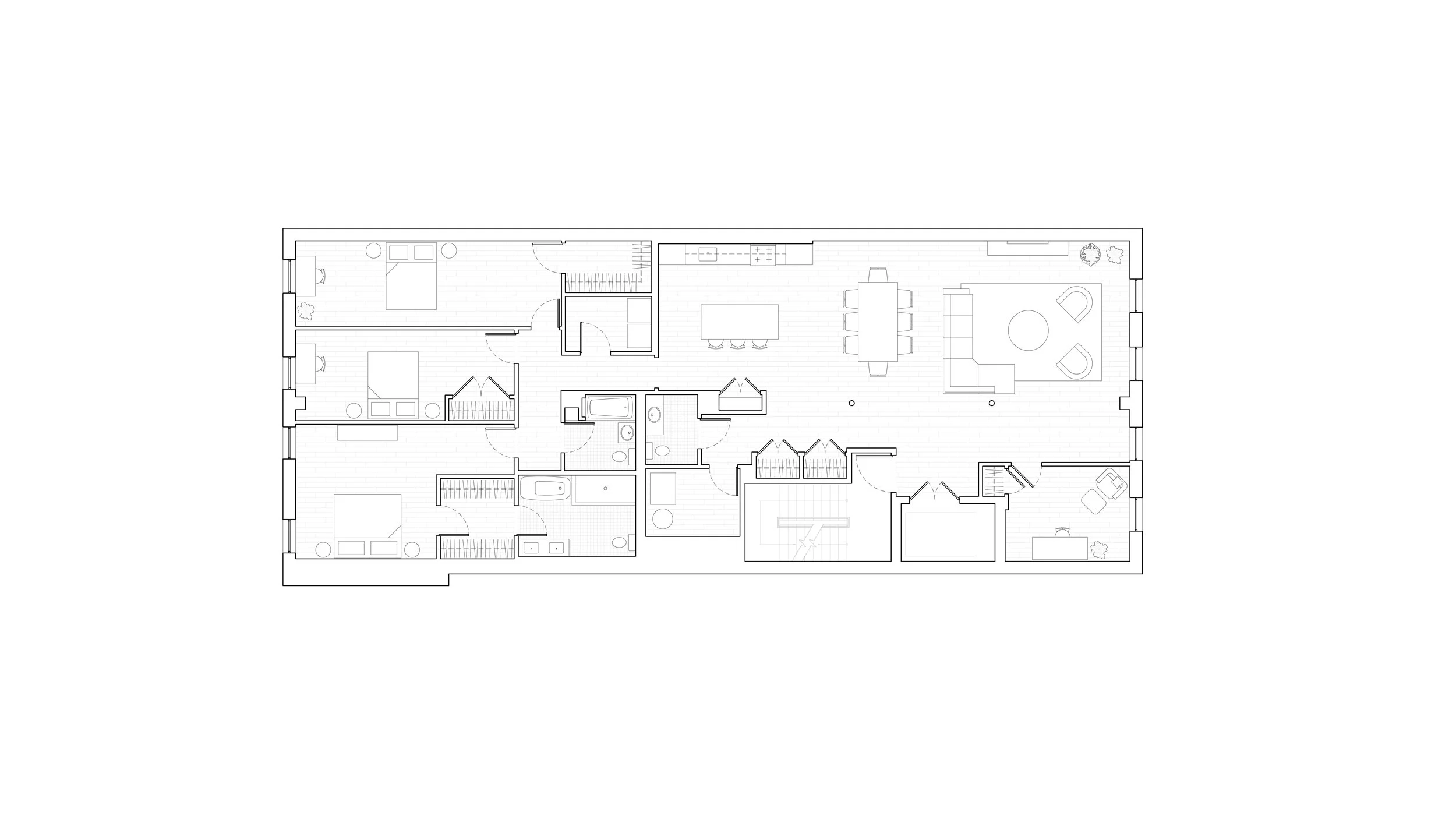
• This former warehouse is situated on a quiet yet street in the bustling neighborhood of Prospect Heights. Home to local artists, this building was designated as an Interim Multiple Dwelling and went through the extensive review process with the New York City Loft Board. At the time, a few floors remained empty, providing an opportunity to renovate the space into a full-floor loft. The modernized elevator leads you directly into the generous open layout. The 2,400 square foot loft  provides an abundance of open living space highlighted with the original cast-iron columns and wood beam. An open kitchen with customized millwork connects to living area allowing an airy flow of circulation and wider space. This project was completed in Spring 2024.

Previous
Previous

Greenwich Village Combination

Next
Next

Lower East Side Development